L’agence CBRE Lille conseille et accompagne les chefs d’entreprise dans leurs projets immobiliers quels que soient leur taille et leur secteur d’activité. Spécialistes de la transaction de bureaux, ...
En savoir plus

500 m² divisible dès 80 m²
Loyer sur demande
Location bureau - 500 m²
Armentières (59280)
Dernière mise à jour : Il y a 8 mois
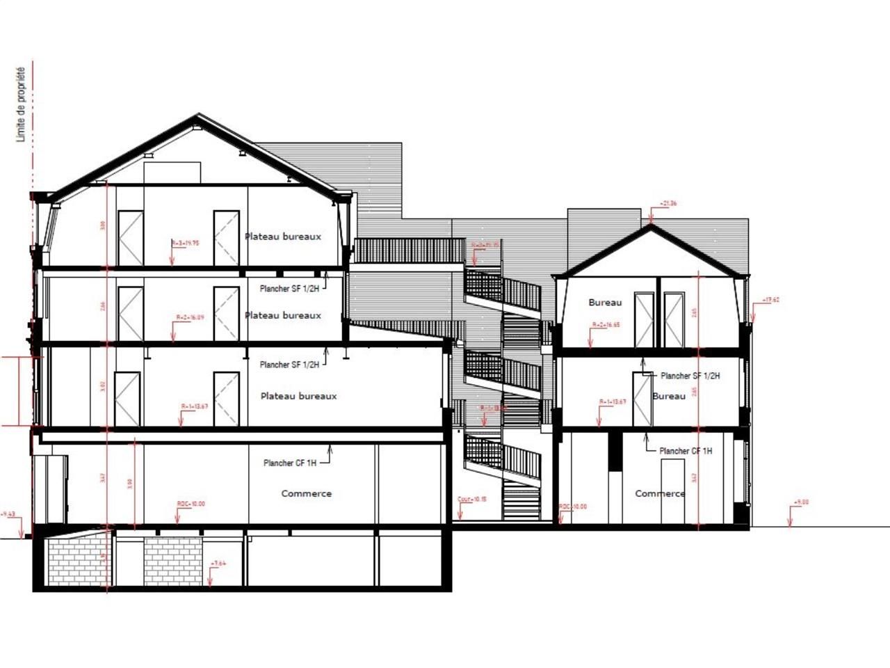
CBRE Lille vous propose à la location des plateaux de bureaux en étage et un local commercial en RDC en plein coeur d'Armentières sur la grande place. L'immeuble dispose d'un bel effet d'enseigne. Les plateaux seront complétement rénovés et le local commercial sera brut de béton. Une cave d'environ 100m² est disponible également avec le local commercial. Disponible pour juillet 2024. Idéal profession libérale.
Régime Fiscal : T.V.A.
Dépôt de garantie : 3 mois de loyer HT/HC
Paiement Loyer : trimestriel
Honoraires : 15% HT du loyer annuel HT HC à la charge du preneur
Prestations :
Accessibilité:
Autoroute A25
Bus Lignes CITA , L99 arrêt : Hôtel de ville
Route D933
Les informations sur les risques auxquels ce bien est exposé sont disponibles sur le site Géorisques : www.georisques.gouv.fr
| Étage | Type | Surfaces | Dispo | Loyer | Charges | Type de bailRév. annuelle |
|---|---|---|---|---|---|---|
| 1SS | Cave | 110 | Immédiate | 3-6-9 ansIndice ILAT | ||
| RDC | Commerce | 140 | Immédiate | 3-6-9 ansIndice ILAT | ||
| 1 | Bureaux | 155 | Immédiate | 3-6-9 ansIndice ILAT | ||
| 2 | Bureaux | 125 | Immédiate | 3-6-9 ansIndice ILAT | ||
| 3 | Bureaux | 80 | Immédiate | 3-6-9 ansIndice ILAT |
Régime Fiscal : T.V.A.
Dépôt de garantie : 3 mois de loyer HT/HC
Paiement Loyer : trimestriel
Honoraires : 15% HT du loyer annuel HT HC à la charge du preneur
Prestations :
- Conditions financières :
- Commerce + cave : 46 000 euros HT HC/an
- Bureaux :
- R+1 : 40 000 euros HT HC/an
- R+2/R+3 : Nous consulter
- Ascenseur
- Accès PMR
- Open-space
- Surface RDC : 140 m²
Accessibilité:
Autoroute A25
Bus Lignes CITA , L99 arrêt : Hôtel de ville
Route D933
Les informations sur les risques auxquels ce bien est exposé sont disponibles sur le site Géorisques : www.georisques.gouv.fr
Voir plus
Afficher les consommations énergétiques
Favoris
Exporter
Appeler
Contacter
Signaler cette annonce
