Conseil en immobilier d'entreprise, Cushman & Wakefield est un acteur incontournable au rayonnement international. Cushman & Wakefield offre des solutions dans toutes les étapes que comporte un p ...
En savoir plus



4 755 m² divisible dès 322 m²
HT HC
PULMA - Location bureau - 4755 m²
Vélizy-Villacoublay (78140)
Dernière mise à jour : Il y a 3 mois
PULMA
Immeuble PULMA
Bureaux à louer à Vélizy Villacoublay
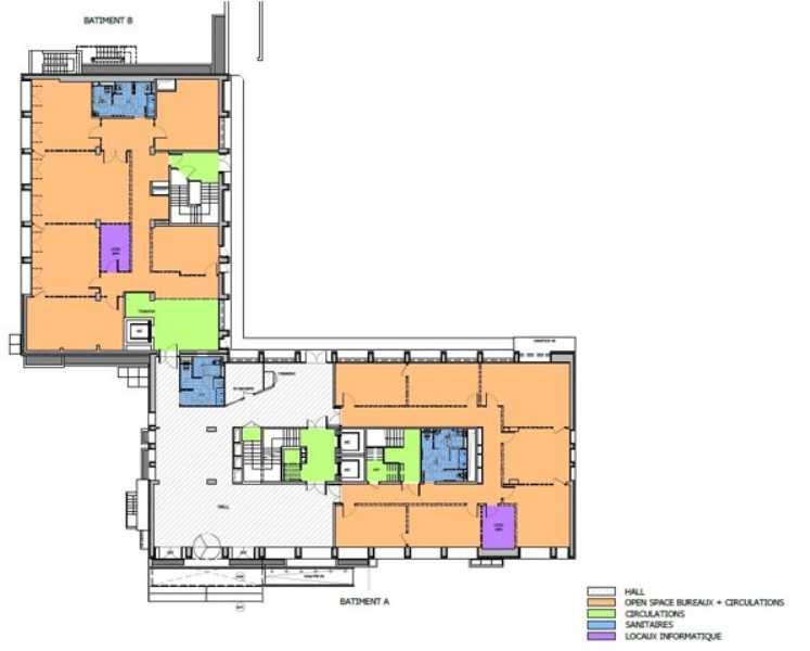
Au coeur du dynamique Inovel Parc, découvrez un ensemble de bureaux à louer dans un immeuble indépendant récemment restructuré, offrant jusqu'à 4 755 m² divisibles à partir de 322 m².
Idéalement situé à proximité immédiate de l'A86, du T6 et du RER C, cet ensemble bénéficie d'une excellente accessibilité.
Les plateaux, lumineux et modulables, sont climatisés, fibrés, et s'ouvrent sur une terrasse aménagée et des espaces détente. L
e site sécurisé propose également une salle de réunion, un espace conciergerie, des douches, des parkings intérieurs et extérieurs, ainsi qu'un local d'archives.
Certification BBC Effinergie Rénovation, toitures végétalisées, accessibilité PMR, tout est pensé pour le confort des occupants.
Disponibilités immédiates et à venir selon les étages. Une opportunité rare pour implanter vos bureaux dans un environnement performant, fonctionnel et agréable.
Impôt Foncier : 12 €/
Régime Fiscal : T.V.A.
Dépôt de garantie : 3 mois de loyer HT/HC
Honoraires : 15 % HT du loyer annuel HT/HC à la charge du preneur.
Taxe Bureau : 11,87 €/m²/an
Information sur le Bail :
TASS: 5 euros/m² HT
Prestations :
Accessibilité:
Aéroport Aéroport d'Orly à 19 km
Accès routier Accès direct A86, N118
Tram T6 "Viroflay" (RER - SNCF) "Chatillon" en 2014
Bus Lignes 279, 291, 295, 390
RER Chaville Vélizy (RER C)
Les informations sur les risques auxquels ce bien est exposé sont disponibles sur le site Géorisques : www.georisques.gouv.fr
Immeuble PULMA
Bureaux à louer à Vélizy Villacoublay
Au coeur du dynamique Inovel Parc, découvrez un ensemble de bureaux à louer dans un immeuble indépendant récemment restructuré, offrant jusqu'à 4 755 m² divisibles à partir de 322 m².
Idéalement situé à proximité immédiate de l'A86, du T6 et du RER C, cet ensemble bénéficie d'une excellente accessibilité.
Les plateaux, lumineux et modulables, sont climatisés, fibrés, et s'ouvrent sur une terrasse aménagée et des espaces détente. L
e site sécurisé propose également une salle de réunion, un espace conciergerie, des douches, des parkings intérieurs et extérieurs, ainsi qu'un local d'archives.
Certification BBC Effinergie Rénovation, toitures végétalisées, accessibilité PMR, tout est pensé pour le confort des occupants.
Disponibilités immédiates et à venir selon les étages. Une opportunité rare pour implanter vos bureaux dans un environnement performant, fonctionnel et agréable.
| Étage | Type | Surfaces | Dispo | Loyer | Charges | Type de bailRév. annuelle |
|---|---|---|---|---|---|---|
| -1 | Arch./Reser. | 761 | Immédiate | 110 HT/HC/m²/an | 3-6-9 ansSur l'indice ILAT | |
| 2 | Bureaux | 466 | Immédiate | 160 HT/HC/m²/an | 43 HT/m²/an | 3-6-9 ansSur l'indice ILAT |
| 3 | Bureaux | 466 | Immédiate | 160 HT/HC/m²/an | 43 HT/m²/an | 3-6-9 ansSur l'indice ILAT |
| 4 | Bureaux | 465 | Immédiate | 160 HT/HC/m²/an | 43 HT/m²/an | 3-6-9 ansSur l'indice ILAT |
| 5 | Bureaux | 465 | Immédiate | 160 HT/HC/m²/an | 43 HT/m²/an | 3-6-9 ansSur l'indice ILAT |
| 6 | Bureaux | 465 | Immédiate | 160 HT/HC/m²/an | 43 HT/m²/an | 3-6-9 ansSur l'indice ILAT |
| 8 | Bureaux | 465 | Immédiate | 160 HT/HC/m²/an | 43 HT/m²/an | 3-6-9 ansSur l'indice ILAT |
| 3 | Bureaux | 322 | Immédiate | 160 HT/HC/m²/an | 43 HT/m²/an | 3-6-9 ansSur l'indice ILAT |
| RdC | Bureaux | 593 | Immédiate | 160 HT/HC/m²/an | 43 HT/m²/an | 3-6-9 ansSur l'indice ILAT |
| 1 | Bureaux | 726 | Immédiate | 160 HT/HC/m²/an | 43 HT/m²/an | 3-6-9 ansSur l'indice ILAT |
| 2 | Bureaux | 322 | Immédiate | 160 HT/HC/m²/an | 43 HT/m²/an | 3-6-9 ansSur l'indice ILAT |
| pkg Ext | Parkings | Immédiate | 400 HT/HC/U/an | 3-6-9 ansSur l'indice ILAT | ||
| Sous-Sol | Parkings | Immédiate | 800 HT/HC/U/an | 3-6-9 ansSur l'indice ILAT | ||
| Sous-Sol | Parkings | Immédiate | 800 HT/HC/U/an | 3-6-9 ansSur l'indice ILAT |
Impôt Foncier : 12 €/
Régime Fiscal : T.V.A.
Dépôt de garantie : 3 mois de loyer HT/HC
Honoraires : 15 % HT du loyer annuel HT/HC à la charge du preneur.
Taxe Bureau : 11,87 €/m²/an
Information sur le Bail :
TASS: 5 euros/m² HT
Prestations :
- Situé au coeur d'Inovel Parc
- Ensemble immobilier indépendant, ayant bénéficié d'une lourde restructuration
- Ascenseurs
- Hall double hauteur
- GTB
- Accessibilité PMR complète
- Site clos et contrôle d'accès
- Toitures végétalisées
- Plateaux lumineux et fonctionnels
- Climatisation réversible
- Fibre optique
- Terrasse aménagée
- Salle de réunion en sous-sol
- Espace détente extérieur
- Espace douche
- Espace conciergerie
- Surface RDC : 593 m²
Accessibilité:
Aéroport Aéroport d'Orly à 19 km
Accès routier Accès direct A86, N118
Tram T6 "Viroflay" (RER - SNCF) "Chatillon" en 2014
Bus Lignes 279, 291, 295, 390
RER Chaville Vélizy (RER C)
Les informations sur les risques auxquels ce bien est exposé sont disponibles sur le site Géorisques : www.georisques.gouv.fr
Parking(s) intérieur(s) Parking(s) extérieur(s)
Voir plus
Afficher les consommations énergétiques
Localisation et transport aux alentours
- Inovel Parc Nord150m (2min à pied)6
- Dewoitine494m (7min à pied)6
Favoris
Exporter
Appeler
Contacter
Signaler cette annonce
