L’agence CBRE Lille conseille et accompagne les chefs d’entreprise dans leurs projets immobiliers quels que soient leur taille et leur secteur d’activité. Spécialistes de la transaction de bureaux, ...
En savoir plus

120 m²
HT HC
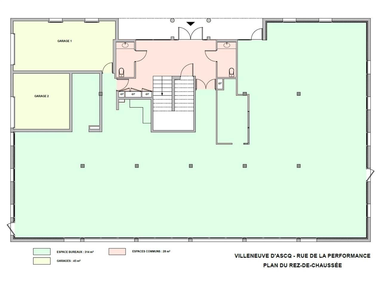
Location bureau - 120 m²
Villeneuve-d'Ascq (59491)
Dernière mise à jour : Il y a 3 jours
CBRE Lille vous propose à la location un plateau de bureaux de 120m² à deux pas de décathlon Campus à Villeneuve d'Ascq. Cette surface est climatisée et déjà cloisonnée. Une alarme est également présente sur le bâtiment. 6 places de parkings privatives sont attenantes à la surface.
N'hésitez pas à nous contacter au 03 59 28 58 14 !
Impôt Foncier : 17 €/m²/an
Régime Fiscal : T.V.A.
Dépôt de garantie : 3 mois de loyer HT/HC
Honoraires : 15% HT du montant du loyer HT HC à la charge du preneur
Prestations :
Accessibilité:
Metro Ligne 2 station "Les Près"
Autoroute Accès A1, A22
Route Accès voie rapide
Bus Arrêt "Boulevard de Mons"
Les informations sur les risques auxquels ce bien est exposé sont disponibles sur le site Géorisques : www.georisques.gouv.fr
N'hésitez pas à nous contacter au 03 59 28 58 14 !
| Étage | Type | Surfaces | Dispo | Loyer | Charges | Type de bailRév. annuelle |
|---|---|---|---|---|---|---|
| 1 | Bureaux | 120 | Immédiate | 120 m²/an HT HC | 25 HT/m²/an | 3-6-9 ansIndice ILAT |
Impôt Foncier : 17 €/m²/an
Régime Fiscal : T.V.A.
Dépôt de garantie : 3 mois de loyer HT/HC
Honoraires : 15% HT du montant du loyer HT HC à la charge du preneur
Prestations :
- ERP : 5eme categ (Tout)
- Alarme
- Accès PMR
- Catégorie ERP (5ème)
- Baie de brassage
- Contrôle d'accès
- Cuisine
- Faux plafond
- Fibre optique
- Open-space
- 6 Places de parking :
- inclues dans le loyer
- Immeuble indépendant
Accessibilité:
Metro Ligne 2 station "Les Près"
Autoroute Accès A1, A22
Route Accès voie rapide
Bus Arrêt "Boulevard de Mons"
Les informations sur les risques auxquels ce bien est exposé sont disponibles sur le site Géorisques : www.georisques.gouv.fr
Voir plus
Afficher les consommations énergétiques
Favoris
Exporter
Appeler
Contacter
Signaler cette annonce
