L’agence CBRE Lyon conseille et accompagne les chefs d’entreprise dans leurs projets immobiliers quels que soient leur taille et leur secteur d’activité. Spécialistes de la transaction de bureaux, ...
En savoir plus

1 178 m² divisible dès 150 m²
HT HC
Location bureau - 1178 m²
Villeurbanne (69100)
Dernière mise à jour : Il y a 19 jours
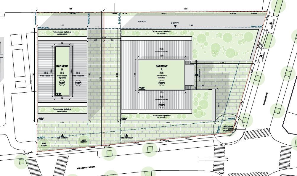
A moins de 15 minutes de la Part Dieu, au coeur du quartier tertiaire et hyperconnecté de Carré de Soie, nous vous proposons 2 plateaux de bureaux dans un ensemble immobilier composé de 2 bâtiments de bureaux neufs construction 100% bois avec dalle béton.
Situé au coeur des communes de Villeurbanne et de Vaulx-en-Velin, Lyon Carré de Soie est un projet urbain d'envergure. Les anciennes friches industrielles laissent place à de nouveaux quartiers de vie avec un pôle de commerces et de loisirs, des aménagements d'espaces tertiaires et d'activités, des logements, un réseau d'espaces publics, des équipements publics structurants et des espaces commerciaux. Ce secteur attire des sièges sociaux mais également des PME ce qui en fait un pôle économique majeur de l'agglomération Lyonnaise. Atout supplémentaire : une excellente desserte par les transports en commun (métro A, Tramway T3 et nombreuses lignes de bus) et Rhônexpress reliant l'aéroport en moins de 20 minutes.
Régime Fiscal : T.V.A.
Dépôt de garantie : 3 mois de loyer HT/HC
Paiement Loyer : trimestriel
Honoraires : 15% HT du loyer annuel HT/HC à la charge du preneur
Information sur le Bail :
Loyer parking sans ombrière: 1 400 euros HT/unité/an Loyer parking avec ombrière: 1 800 euros HT/unité/an Parking en bail civil de maximum 8 ans Loyer terrasse: 66 eurosHT/m²/an
Prestations :
Accessibilité:
Tramway Tramway : Ligne T3 - permettant l'accès à la Gare SNCF Part Dieu en moins de 10 minutes
Metro Métro : Ligne A permettant l'accès à Lyon Perrache en 20 minutes et au métro B -station Charpennes- en 10 minutes
Route Accès : Rue Alfred de Musset, Rue Henri Legay, Rue Jean Bertin, à proximité du Boulevard Laurent Bonnevay
Bus Bus : Nombreuses lignes
Rhône Express : reliant la Gare SNCF Part Dieu en 9 minutes et à l'Aéroport St Exupéry en 20 minutes
Les informations sur les risques auxquels ce bien est exposé sont disponibles sur le site Géorisques : www.georisques.gouv.fr
Situé au coeur des communes de Villeurbanne et de Vaulx-en-Velin, Lyon Carré de Soie est un projet urbain d'envergure. Les anciennes friches industrielles laissent place à de nouveaux quartiers de vie avec un pôle de commerces et de loisirs, des aménagements d'espaces tertiaires et d'activités, des logements, un réseau d'espaces publics, des équipements publics structurants et des espaces commerciaux. Ce secteur attire des sièges sociaux mais également des PME ce qui en fait un pôle économique majeur de l'agglomération Lyonnaise. Atout supplémentaire : une excellente desserte par les transports en commun (métro A, Tramway T3 et nombreuses lignes de bus) et Rhônexpress reliant l'aéroport en moins de 20 minutes.
| Étage | Type | Surfaces | Dispo | Loyer | Charges | Type de bailRév. annuelle |
|---|---|---|---|---|---|---|
| 2 | Bureaux | 439,3 | Immédiate | 220 m²/an HT HC | 6-9 ansIndice ILAT | |
| 2 | Bureaux | 149,7 | Immédiate | 220 m²/an HT HC | 6-9 ansIndice ILAT | |
| 4 | Bureaux | 439,3 | Immédiate | 220 m²/an HT HC | 6-9 ansIndice ILAT | |
| 4 | Bureaux | 149,7 | Immédiate | 220 m²/an HT HC | 6-9 ansIndice ILAT |
Régime Fiscal : T.V.A.
Dépôt de garantie : 3 mois de loyer HT/HC
Paiement Loyer : trimestriel
Honoraires : 15% HT du loyer annuel HT/HC à la charge du preneur
Information sur le Bail :
Loyer parking sans ombrière: 1 400 euros HT/unité/an Loyer parking avec ombrière: 1 800 euros HT/unité/an Parking en bail civil de maximum 8 ans Loyer terrasse: 66 eurosHT/m²/an
Prestations :
- Certification BREAM Very Good et E2C1
- 2 bâtiments en bois, configuration en U
- Bâtiments "Code du Travail" en R+4
- Plateaux d'environ 500 m²
- Quote part PC= - de 10%
- HSP : 2,70m environ
- Faux plancher technique
- Dalle moquette au sol dans les bureaux
- Stores extérieurs motorisés sur les façades (sauf Nord)
- Piège à son au plafond
- Détection de présence
- Production / distribution finale en ventilo-convecteurs
- Servitude de passage pour l'évacuation en cas de division des lots
- Terrasses accessibles du R+1 au R+5
- Parkings extérieurs
Accessibilité:
Tramway Tramway : Ligne T3 - permettant l'accès à la Gare SNCF Part Dieu en moins de 10 minutes
Metro Métro : Ligne A permettant l'accès à Lyon Perrache en 20 minutes et au métro B -station Charpennes- en 10 minutes
Route Accès : Rue Alfred de Musset, Rue Henri Legay, Rue Jean Bertin, à proximité du Boulevard Laurent Bonnevay
Bus Bus : Nombreuses lignes
Rhône Express : reliant la Gare SNCF Part Dieu en 9 minutes et à l'Aéroport St Exupéry en 20 minutes
Les informations sur les risques auxquels ce bien est exposé sont disponibles sur le site Géorisques : www.georisques.gouv.fr
Emplacement(s) de Parking: 31 places
Voir plus
Afficher les consommations énergétiques
Favoris
Exporter
Appeler
Contacter
Signaler cette annonce
