Conseil en immobilier d'entreprise, Cushman & Wakefield est un acteur incontournable au rayonnement international. Cushman & Wakefield offre des solutions dans toutes les étapes que comporte un p ...
En savoir plus





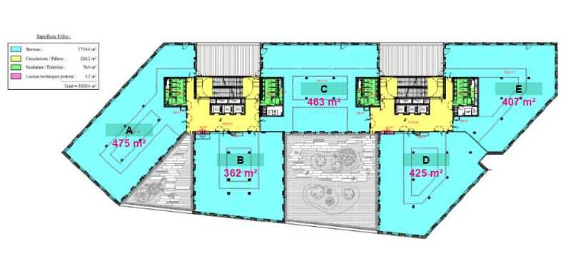
5 592 m² divisible dès 360 m²
HT HC
View One - Location bureau - 5592 m²
Villeurbanne (69100)
Dernière mise à jour : Il y a 2 mois
Bureaux à louer Coeur carré de Soie
Immeuble View One
Cushman & Wakefield vous propose à la location des bureaux rénovés au sein de l'immeuble « View One », idéalement situé au coeur du quartier dynamique de Carré de Soie à Villeurbanne (69100).
Implanté sur l'esplanade Miriam Makeba, ce site bénéficie d'un environnement vivant et attractif avec de nombreux commerces et services à proximité immédiate : restaurants, pharmacie, cabinet médical, banque, laboratoire et centre commercial.
Les locaux, récemment rénovés, garantissent des conditions de travail idéales au sein d'un cadre moderne et facilement accessible.
Un rooftop aménagé avec une cafétéria a été pensé pour assurer le confort et le bien-être des collaborateurs.
La desserte en transports en commun, au pied de l'immeuble, est exceptionnelle avec tramway, métro, bus et Rhône Express, garantissant un accès rapide aux gares lyonnaises, au centre-ville ou à l'aéroport Saint-Exupéry.
Les informations sur les risques auxquels ce bien est exposé sont disponibles sur le site Géorisques : www.georisques.gouv.fr
Impôt Foncier : 17 €/HT/m²/an
Régime Fiscal : T.V.A.
Dépôt de garantie : 3 mois de loyer HT/HC
Honoraires : 15 % HT du loyer annuel HT/HC à la charge du preneur.
Information sur le Bail :
Loyer payable par trimestre d'avance Les charges excluent les consommations de chaud et froid privatif Prime d'assurance : 0,97 euros/m²/an Loyer terrasses : 90 euros/m²/an Capacitaire : 1 200 personnes
Prestations :
Accessibilité:
Métro Métro ligne A, station « Vaulx En Velin La Soie » à 150 m à pied, direction Perrache.
Tram Tramway ligne T3, arrêt « Vaulx En Velin La Soie » à 150 m à pied, direction Part-Dieu Villette.
Aéroport Aéroport Lyon St Exupéry à 20 minutes environ.
Les informations sur les risques auxquels ce bien est exposé sont disponibles sur le site Géorisques : www.georisques.gouv.fr
Immeuble View One
Cushman & Wakefield vous propose à la location des bureaux rénovés au sein de l'immeuble « View One », idéalement situé au coeur du quartier dynamique de Carré de Soie à Villeurbanne (69100).
Implanté sur l'esplanade Miriam Makeba, ce site bénéficie d'un environnement vivant et attractif avec de nombreux commerces et services à proximité immédiate : restaurants, pharmacie, cabinet médical, banque, laboratoire et centre commercial.
Les locaux, récemment rénovés, garantissent des conditions de travail idéales au sein d'un cadre moderne et facilement accessible.
Un rooftop aménagé avec une cafétéria a été pensé pour assurer le confort et le bien-être des collaborateurs.
La desserte en transports en commun, au pied de l'immeuble, est exceptionnelle avec tramway, métro, bus et Rhône Express, garantissant un accès rapide aux gares lyonnaises, au centre-ville ou à l'aéroport Saint-Exupéry.
Les informations sur les risques auxquels ce bien est exposé sont disponibles sur le site Géorisques : www.georisques.gouv.fr
| Étage | Type | Surfaces | Dispo | Loyer | Charges | Type de bailRév. annuelle |
|---|---|---|---|---|---|---|
| 3 | Bureaux | 420,5 | 185 HT/HC/m²/an | 59,1 HT/m²/an | 3-6-9 ansSur l'indice ILAT | |
| 3 | Bureaux | 401,5 | 185 HT/HC/m²/an | 59,1 HT/m²/an | 3-6-9 ansSur l'indice ILAT | |
| 4 | Bureaux | 472,9 | Immédiate | 185 HT/HC/m²/an | 59,1 HT/m²/an | 3-6-9 ansSur l'indice ILAT |
| 4 | Bureaux | 470,2 | Immédiate | 185 HT/HC/m²/an | 59,1 HT/m²/an | 3-6-9 ansSur l'indice ILAT |
| 4 | Bureaux | 420,8 | Immédiate | 185 HT/HC/m²/an | 59,1 HT/m²/an | 3-6-9 ansSur l'indice ILAT |
| 4 | Bureaux | 401,3 | Immédiate | 185 HT/HC/m²/an | 59,1 HT/m²/an | 3-6-9 ansSur l'indice ILAT |
| 4 | Bureaux | 360,7 | Immédiate | 185 HT/HC/m²/an | 59,1 HT/m²/an | 3-6-9 ansSur l'indice ILAT |
| 5 | Bureaux | 420,7 | Immédiate | 185 HT/HC/m²/an | 59,1 HT/m²/an | 3-6-9 ansSur l'indice ILAT |
| 5 | Bureaux | 401,2 | Immédiate | 185 HT/HC/m²/an | 59,1 HT/m²/an | 3-6-9 ansSur l'indice ILAT |
| 6 | Bureaux | 470,4 | Immédiate | 185 HT/HC/m²/an | 59,1 HT/m²/an | 3-6-9 ansSur l'indice ILAT |
| 6 | Bureaux | 419,5 | Immédiate | 185 HT/HC/m²/an | 59,1 HT/m²/an | 3-6-9 ansSur l'indice ILAT |
| 6 | Bureaux | 360,2 | Immédiate | 185 HT/HC/m²/an | 59,1 HT/m²/an | 3-6-9 ansSur l'indice ILAT |
| 8 | Bureaux | 572 | Immédiate | 185 HT/HC/m²/an | 59,1 HT/m²/an | 3-6-9 ansSur l'indice ILAT |
| SS | Arch./Reser. | 107 | 65 HT/HC/m²/an | 3-6-9 ansSur l'indice ILAT | ||
| SS | Parkings | Immédiate | 1450 HT/HC/U/an | 3-6-9 ansSur l'indice ILAT |
Impôt Foncier : 17 €/HT/m²/an
Régime Fiscal : T.V.A.
Dépôt de garantie : 3 mois de loyer HT/HC
Honoraires : 15 % HT du loyer annuel HT/HC à la charge du preneur.
Information sur le Bail :
Loyer payable par trimestre d'avance Les charges excluent les consommations de chaud et froid privatif Prime d'assurance : 0,97 euros/m²/an Loyer terrasses : 90 euros/m²/an Capacitaire : 1 200 personnes
Prestations :
- Double certification : HQE Excellent et BREEAM Very GOOD
- 5 volumes architecturaux
- 7 ascenseurs
- 1700 m² de jardins suspendus, terrasses végétalisées ou en platelage bois
- Roof-top de 342 m² au 8ème étage avec ambiance végétalisée
- Hall d'accueil traversant avec double entrée (6 m de HSP en double hauteur)
- Immeuble à l'architecture moderne et transparente
- Nombreux restaurants au rez de chaussée
- Des étages de bureaux bénéficiant d'une large lumière naturelle
- Une grande flexibilité des plateaux
- Un bâtiment certifié NF Bâtiment tertiaire démarche HQE Construction
- HSP : 2 m70 libre - Plenum de faux-plancher : 9 cm libre
- Largeur des plateaux de 15 à 18 m
- Trames de bureaux de 1m 35
- Ventilo-convecteurs 4 tubes
- Stores intérieurs à haute réflexion
Accessibilité:
Métro Métro ligne A, station « Vaulx En Velin La Soie » à 150 m à pied, direction Perrache.
Tram Tramway ligne T3, arrêt « Vaulx En Velin La Soie » à 150 m à pied, direction Part-Dieu Villette.
Aéroport Aéroport Lyon St Exupéry à 20 minutes environ.
Les informations sur les risques auxquels ce bien est exposé sont disponibles sur le site Géorisques : www.georisques.gouv.fr
62 Parking(s) en sous-sol
Voir plus
Afficher les consommations énergétiques
Localisation et transport aux alentours
- Vaulx-en-Velin La Soie322m (5min à pied)A31
Favoris
Exporter
Appeler
Contacter
Signaler cette annonce
